Barásoain

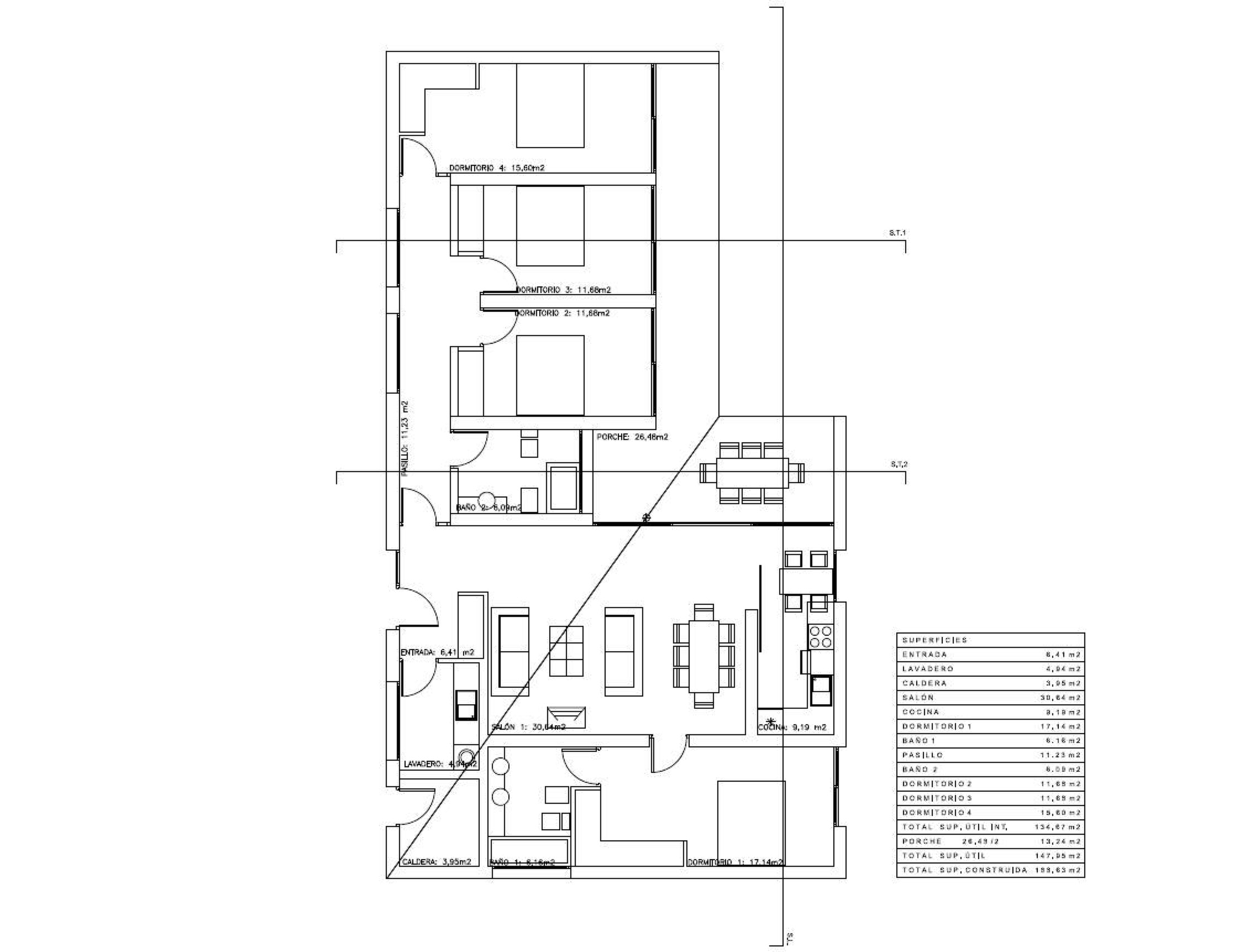
Vivienda en planta baja con forma de “L”. La posición y la forma de la casa vienen
determinadas por la existencia de edificios colindantes. El objetivo es dejar libre y protegido de las vistas y del viento predominante la mayor parte del terreno para su disfrute. El salón y los dormitorios se abren con grandes ventanales al jardín y se protegen con un porche que recorre toda la fachada.

Planos

Otros proyectos relacionados

Mélida

Reforma, amueblamiento, decoración y paisajismo de vivienda unifamiliar de 1900.La propiedad entendió desde el principio el enfoque que merecía la casa y dotó de gran

Ver proyecto »

Maquirriain

Recuperación de la cubierta y el forjado de madera anteriormente existentes y que fueron demolidos por el riesgo de derrumbe en atrio de iglesia. La

Ver proyecto »