Larraga

La forma del solar, su pronunciada pendiente, la existencia de un medianil de grandes
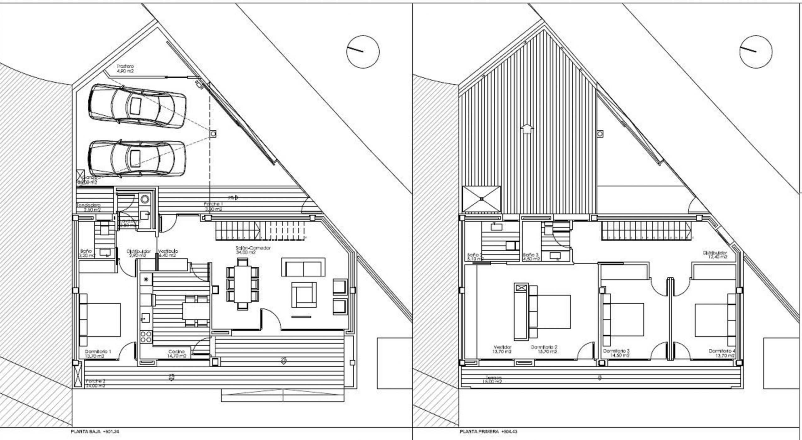
dimensiones en su parte norte y las extensas vistas condicionan la posición y la forma de la vivienda proyectada. El edificio se desarrolla en dos volúmenes con cubierta inclinada a un agua, uno de vivienda de dos plantas y otro de garaje y trastero de una sola planta, situándose el acceso en el encuentro entre ambos. Tanto el salón, la cocina como los cuatros dormitorios disponen de grandes paños acristalados orientados a las vistas y protegidos por porche o terraza.

Planos

Otros proyectos relacionados

Mélida

Reforma, amueblamiento, decoración y paisajismo de vivienda unifamiliar de 1900.La propiedad entendió desde el principio el enfoque que merecía la casa y dotó de gran

Ver proyecto »

Maquirriain

Recuperación de la cubierta y el forjado de madera anteriormente existentes y que fueron demolidos por el riesgo de derrumbe en atrio de iglesia. La

Ver proyecto »